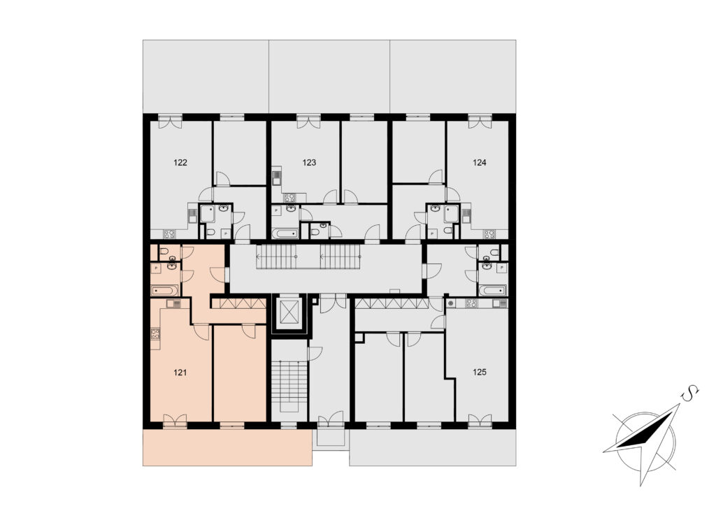
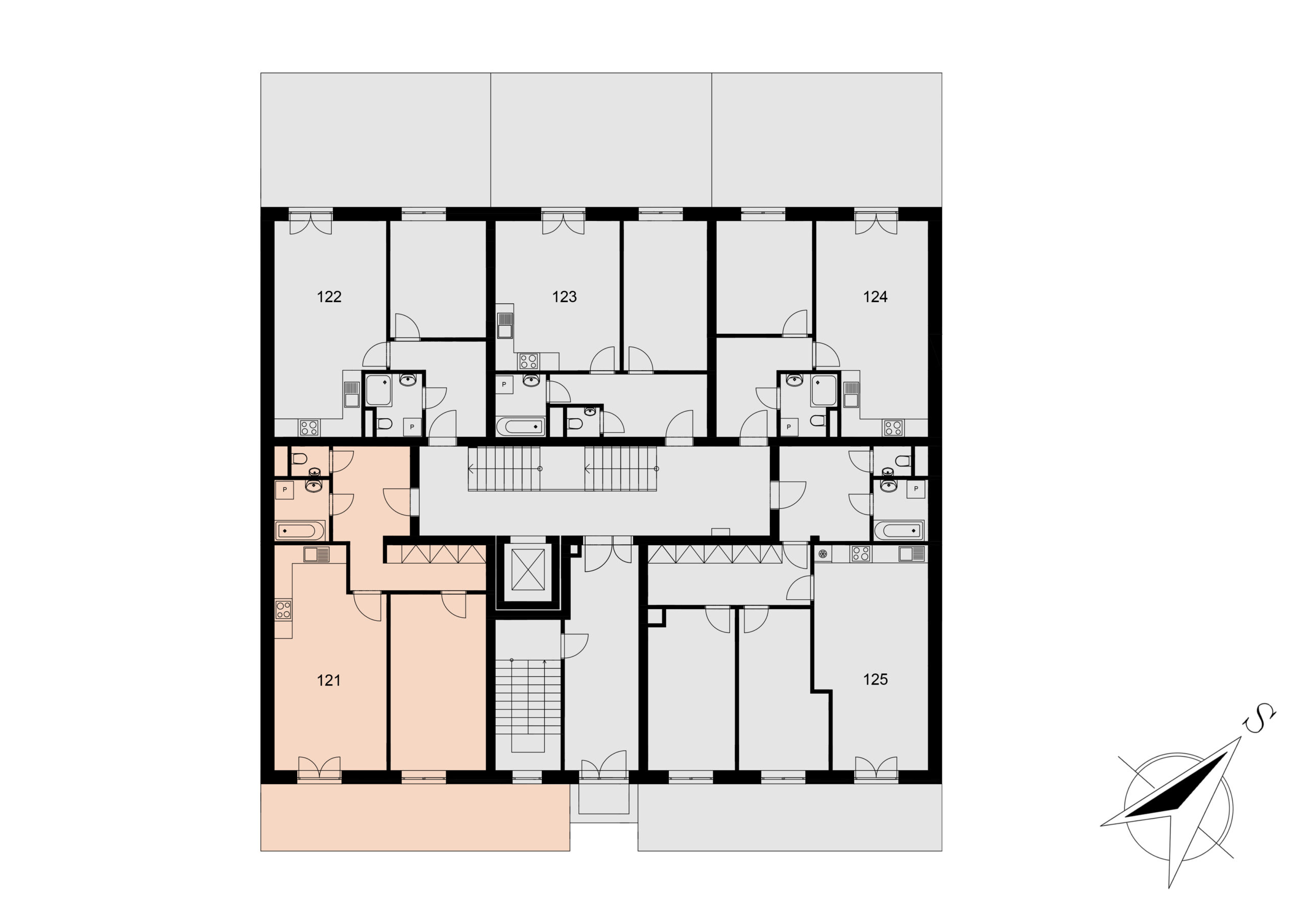
BYT 121
Kupní cena: 4 697 235,-Kč vč. DPH
Rezervační záloha: 469 724,-Kč
Doplatek: 4 227 512,-Kč
číslo bytu 121
121.1Předsíň15,2 m²
121.2WC1,6 m²
121.3Koupelna3,8 m²
121.4Obývací pokoj + kk26,2 m²
121.4Ložnice19 m²
Vnitřní užítná plocha65,8 m²
Celková podlahová plocha68,7 m²
Plocha předzahrádky22,2 m²
Máte zájem o prohlídku nebo více informací? Spojte se s námi
PROJEKT
Vše v krokové dostupnosti
Objevte ideální místo pro váš nový domov! U nás máte vše, co potřebujete, doslova na dosah ruky. Nacházíme se v srdci města Hrádek nad Nisou, kde máte k dispozici vše potřebné – školy, obchody, restaurace, zdravotní péči i kulturní vyžití. Užijte si komfort, který nabízí blízkost veškeré infrastruktury.

Supermarket – 700 m

Kulturní centrum - 400 m

MŠ – 704 m

ZŠ – 335 m

Sportovní centrum – 250 m

Vlak – 480 m

Liberec - 22 km

Jezero Kristýna – 1,5 km

Lékarna - 270 m

Posilovna - 400 m

KONTAKTY
SpolečnostVáš Nový Byt s.r.o.
IČO 211 77 155
AdresaStarý Dvůr 798, Hrádek nad Nisou, PSČ 463 34
Telefonní číslo+420 774 424 990
Máte zájem o prohlídku nebo více informací? Spojte se s námi





