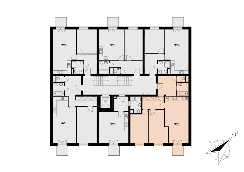
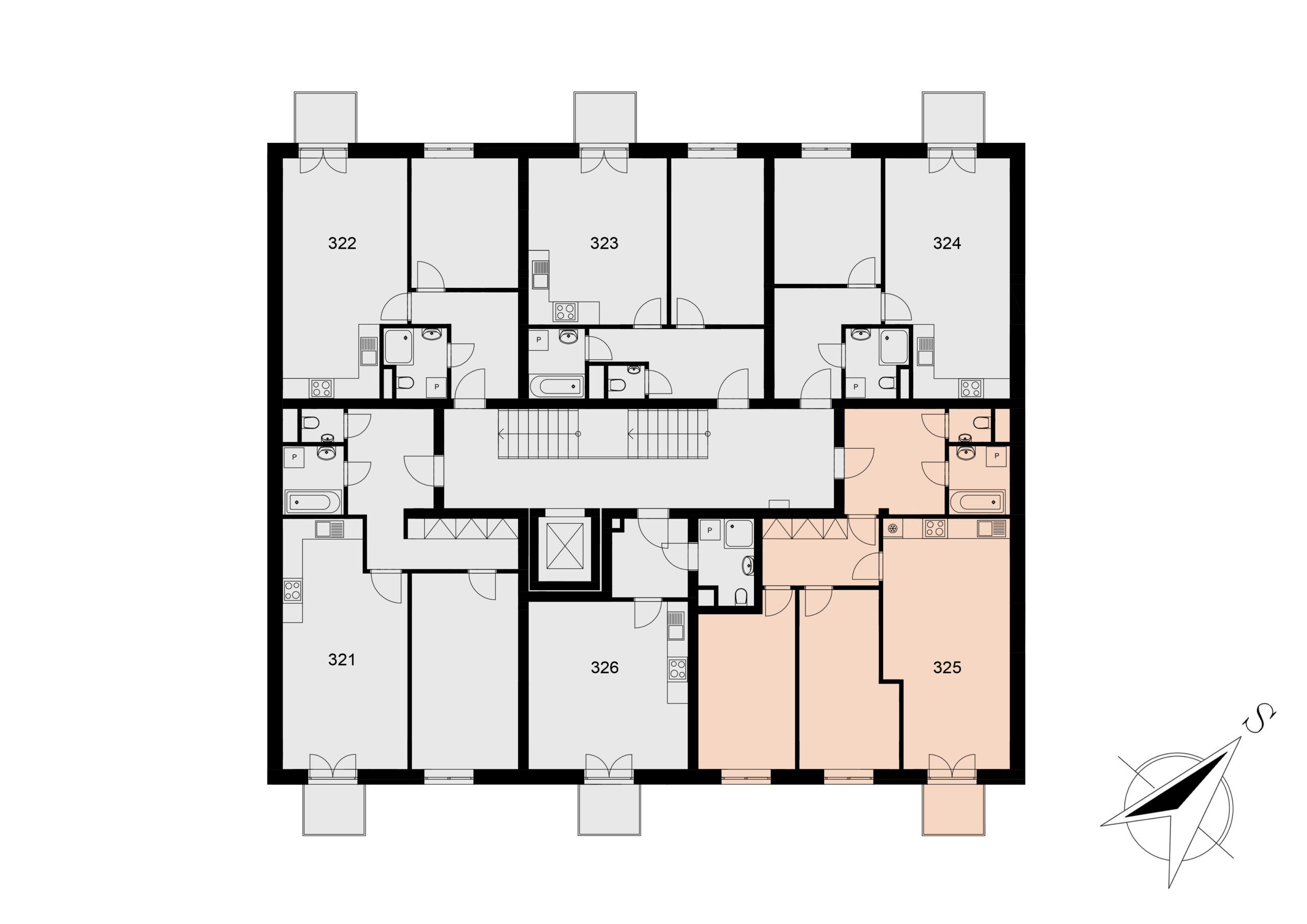
BYT 325
číslo bytu 325
325.1Předsíň9,6 m²
325.2WC 1,3 m²
325.3Koupelna3,8 m²
325.4Obývací pokoj + kk27,3 m²
325.5Chodba7,1 m²
325.6Ložnice14,4 m²
325.7Ložnice14,6 m²
Vnitřní užítná plocha78,1 m²
Celková podlahová plocha81,9 m²
Plocha balkónu2,9 m²
Máte zájem o prohlídku nebo více informací? Spojte se s námi
PROJEKT
Vše v krokové dostupnosti
Objevte ideální místo pro váš nový domov! U nás máte vše, co potřebujete, doslova na dosah ruky. Nacházíme se v srdci města Hrádek nad Nisou, kde máte k dispozici vše potřebné – školy, obchody, restaurace, zdravotní péči i kulturní vyžití. Užijte si komfort, který nabízí blízkost veškeré infrastruktury.

Supermarket – 700 m

Kulturní centrum - 400 m

MŠ – 704 m

ZŠ – 335 m

Sportovní centrum – 250 m

Vlak – 480 m

Liberec - 22 km

Jezero Kristýna – 1,5 km

Lékarna - 270 m

Posilovna - 400 m

KONTAKTY
SpolečnostVáš Nový Byt s.r.o.
IČO 211 77 155
AdresaStarý Dvůr 798, Hrádek nad Nisou, PSČ 463 34
Telefonní číslo+420 774 424 990
Máte zájem o prohlídku nebo více informací? Spojte se s námi





